Haus Alice - Westerland

Wir benötigen Ihre Zustimmung

Diese Webseite verwendet Google Maps zur Darstellung von Karten.
Hierbei werden Daten an Google übermittelt. Näheres finden Sie unter Datenschutz.

Herr Thomas Casper
Andreas-Dirks-Str. 14
25980 Sylt / Westerland
6 Ferienwohnungen
  • Nichtraucher Nichtraucher
  • Internetzugang Internetzugang
  • Parkplatz Parkplatz
  • Balkon/Terrasse Balkon/Terrasse
Preis: ab 66,– € *
pro Nacht
Beschreibung der Unterkunft
Die Appartementanlage Haus Alice bietet Ihnen für Ihren Sylt-Urlaub komfortable und hochwertige Wohnungen direkt am Westerländer Zentralstrand. Der Strandübergang mit Promenade hinter der Düne befindet sich nur 50 Meter entfernt. Die Friedrichstraße und das Syltness-Center sind in nur wenigen Gehminuten zu erreichen. In einer geschützten und ruhigen Anliegerstraße gelegen, können Sie hier völlig entspannen und Erholung finden.

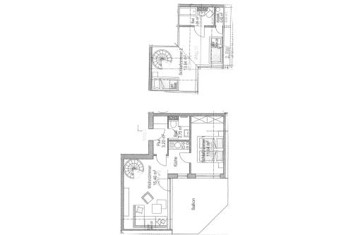
Wohnung Becker 36/10 - 1. Etage
Der Wohnraum ist geschmackvoll und freundlich gestaltet mit einer gemütlichen Sitzgruppe und einem Essplatz für 4 Personen. Das Sofa läßt sich mit wenigen Handgriffen in einen zusätzlichen Schlafplatz für 2 Personen umwandeln. Die nicht direkt einsehbare offene Küche mit Geschirrspüler, Ceranfeld undKühlschrank ist zweckmäßig und komfortabel ausgestattet.
Der nach Süden ausgerichtete Balkon bietet Ihnen einen Logenplatz mit Strandkorb mit Dünenblick. Im Schlafzimmer befindet sich ein Doppelbett mit zwei Nachtschränken und geräumigem Kleiderschrank. Das Badezimmer ist hell gefliest und mit Dusche, WC und Waschbecken ausgestattet.
Ein Parkplatz steht Ihnen vor dem Haus zur alleinigen Verfügung.

Wohnung Segatz 36/2 - Erdgeschoß
Mit allen Annehmlichkeiten ausgestattet erwartet Sie hier ein Urlaub auch ohne Auto. Die exclusive und moderne Einrichtung lädt zum verweilen ein, der große Fernseher bietet am Abend Entspannung und Information.
In der komplett ausgestatteten Küche werden sie nichts vermissen. Das Schlafzimmer bietet Ihnen reichlich Schrankfläche für Ihre Urlaubsgarderobe und das bequeme und hochwertige Bett bereitet Ihnen einen erholsamen Schlaf.
DasDuschbad ist recht geräumig und mit Fön und reichlich Ablagen versehen.. Eine Garderobe im Flur hält Ordnung.

Wohnung Klotz 32/13 - 2.Etage
Die helle und schön aufgeteilte Ferienwohnung über zwei Stockwerke ist mit 4 Sternen zertifiziert und besitzt einen Wohn-und Essbereich, eine praktische Küche, große Fenster, zwei Schlafzimmer mit viel Platz und zwei moderne Badezimmer mit Duschwanne und Glasduschkabine. Eine große Eckterrasse mit Sitzmöglichkeiten macht diese Ferienwohnung zu einem wahren Erholungsort.
Schlafräume:
EG: Doppelbett 90 cm x 200 cm, Schränke und Kommode
Das große Fenster über Eck im Obergeschoss gibt dem Raum ein gemütliches Flair.

Wohnung Widlak 34/6 - 1.Etage
Das Wohnzimmer ist hell und modern gestaltet mit intergrierter Essgruppe für 4 Personen. Die angrenzende Küche mit Mikrowelle, Herd und Backofen ist separat.Ein Balkon bietet Ihnen einen Logenplatz mit Strandkorb direkt an den Dünen. Im Schlafzimmer mit Doppelbett befindet sich ein geräumiger Kleiderschrank. Das Badezimmer ist hell gefliest und mit Dusche, WC und Waschbecken ausgestattet.

Wohnung Riebschläger 34-7 - 1.Etage
Das 2-Zimmer Appartement ist freundlich eingerichtet, Der Wohnraum hat eine offene Küche mit Herd und Backofen. Nebendran ist der Esstisch für 4 Pesonen sowie ein gemütliches Ecksofa. Vom Wohnzimmer kommt man auf den West-Balkon mit einem Strandkorb, Tisch und 2 Stühlen, sowie Blick auf die Dünen. Im Schlafzimmer befindet sich ein Doppelbett mit zwei Nachtschränken und farblich passendem Kleiderschrank. Das Badezimmer ist hell, mit Dusche, WC und Waschbecken ausgestattet.

Wohnung Weigel 36/5 - Erdgeschoß
Das Appartement ist mit allen Annehmlichkeiten ausgestattet für einen Urlaub auch ohne Auto.
Die exclusive und moderne Einrichtung lädt zum verweilen ein, der Fernseher bietet am Abend Entspannung und Information. In der komplett ausgestatteten Küche werden Sie nichts vermissen. Das Schlafzimmer bietet Ihnen reichlich Schrankfläche für Ihre Urlaubsgarderobe und ein bequemes und hochwertiges Bett.
Das Duschbad ist geräumig und mit Fön und reichlich Ablagen versehen. Eine Garderobe im Flur hält Ordnung.

Ihre Räder können Sie direkt an der Wohnung abstellen.
Bitte beachten Sie die Regelung zur gesonderten Kurtaxe der jeweiligen Gemeinde auf Sylt. Diese wird gesondert berechnet und ist spätestens bei Anreise fällig.
Aufgrund der positiven Rückmeldungen ist das Wäschepaket jetzt mit im Angebot enthalten. Wenn Sie keine Wäsche wünschen, bitten wir Sie, die Wäsche spätestens 48 Stunden vor Anreise explizit und schriftlich abzubestellen. Vielen Dank.

Früheste Anreise ab 17:00 Uhr
Späteste Abreise bis 10:00 Uhr

Mietbedingungen
Zahlung: Nach Vertragsabschluss 10% Anzahlung, Restzahlung 14 Tage vor Anreise.
Bei kurzfristiger Buchung Zahlung in bar oder per EC-Karte vor Ort.
Storno: Von einer Direktbuchung können Sie innerhalb von 24 Stunden kostenlos zurücktreten.
Entfernungen
Sylter Welle 620 m (9 min zu Fuß)
Bahnhof Sylt 930 m (13 min zu Fuß)
Strand Westerland 1.130 m (16 min zu Fuß)
Flughafen Sylt 3.070 m (11 min Fahrrad)
Strand Wenningstedt 4.950 m (15 min Fahrrad)
Strand Kampen (Rotes Kliff) 6.090 m (19 min Fahrrad)
Sansibar Strand (Rantum) 10 km 899 m (32 min Fahrrad)
Hafen List 17 km 727 m (56 min Fahrrad)
Hafen Hörnum 17 km 950 m (56 min Fahrrad)
Fragen zur Buchung
Wie kann ich buchen?
Per Klick auf den Button 'Buchen' gelangen Sie zum Buchungsformular, wo Sie zunächst Ihre Reise- und Kontaktdaten angeben/ergänzen. Bevor die Buchung übermittelt wird, erhalten Sie eine Übersicht mit allen Reisedaten, dem endgültigen Mietpreis und den Anbieterbedingungen.
Alle Daten werden sicher SSL-verschlüsselt übertragen!
Nachdem Sie die Buchung abgeschlossen haben, erhalten Sie direkt per Email eine Buchungsbestätigung mit den Details zu Ihrer Reise und den Kontaktdaten Ihres Vermieters.
Ist die Unterkunft in meinem gewünschten Zeitraum frei und buchbar?
Im Buchungsformular wird Ihnen der aktuelle Belegungskalender mit den freien Zeiten zur Auswahl angezeigt. Generell gilt, dass Sie eine Unterkunft nur buchen können, wenn der Zeitraum im Kalender frei ist und die Mindestnächte erfüllt sind.
Was sind die Zahlungsarten und -ziele?
Zahlungsarten und -ziel entnehmen Sie bitte den Anbieterbedingungen, die auf der Übersichtseite zur Buchung vor Abschluß angezeigt werden und Ihnen nach Abschluß mit Ihrer Buchungsbestätigung zugesandt werden.
Generell brauchen Sie keine Kreditkartendaten oder Kontoverbindungen im Buchungsformular angeben.
Wird eine Kaution verlangt?
Ob und in welcher Höhe eine Kaution verlangt wird, wird Ihnen vor Abschluß der Buchung angezeigt.
Kann ich eine Buchung stornieren?
Ja. Beachten Sie aber, dass im Falle einer Stornierung durch den Mieter, Stornierungsgebühren vom Vermieter berechnet werden können. Die genauen Bedingungen und Stornierungsgebühren des Vermieters werden Ihnen vor Abschluß der Buchung angezeigt.
Sie haben noch Fragen bevor Sie buchen?
Wenn Sie telefonisch buchen möchten oder weitere Fragen haben, rufen Sie uns gerne an.
Buchungs-Hotline: 0231-96139022
Heute erreichbar: 9:00 - 18:00 Uhr
Becker 36/10
Betten 2
Größe 39 m²
Wohnzimmer 1
Schlafzimmer 1
Kochbereich Küche
Reisebabybett 38,50 €
Kofferservice zu Ihrem... 16,50 €
Nespressomaschine 27,50 €
Hochstuhl 38,50 €
Angebot für Union... 0,– €
  • Nichtraucher
  • Internetzugang
  • Parkplatz
  • Balkon
  • Allergenarm
  • Obergeschoß
  • TV
  • Gartenmöbel
  • Doppelbett
  • Schlafsofa
  • Kleiderschrank
  • Backofen
Preis: ab 66,– € *
pro Nacht

Per Klick kommen Sie zum nächsten Schritt, wo Sie Ihre Reisezeit mit genauer Preisangabe wählen können
Segatz 36/2
Betten 2
Größe 45 m²
Wohnzimmer 1
Schlafzimmer 1
Kochbereich Küche
Bademantel 27,50 €
Kofferservice zu Ihrem Appartement, pro Koffer 16,50 €
Nespressomaschine 27,50 €
Angebot für Union Reiseversicherung AG ohne Selbstbehalt 0,– €
  • Nichtraucher
  • Internetzugang
  • Parkplatz
  • Balkon
  • Allergenarm
  • Parterre
  • Mikrowelle
  • TV
  • Gartenmöbel
  • Doppelbett
  • Schlafsofa
  • Kleiderschrank
Preis: ab 75,90 € *
pro Nacht

Per Klick kommen Sie zum nächsten Schritt, wo Sie Ihre Reisezeit mit genauer Preisangabe wählen können
Klotz 32/13
Betten 2
Größe 33 m²
Wohnzimmer 1
Schlafzimmer 1
Kochbereich Küche
Reisebabybett 38,50 €
Bademantel 27,50 €
Kofferservice zu Ihrem Appartement, pro Koffer 16,50 €
Nespressomaschine 27,50 €
  • Nichtraucher
  • Internetzugang
  • Parkplatz
  • Balkon
  • Terrasse
  • Allergenarm
  • Obergeschoß
  • Mikrowelle
  • Waschmaschine
  • Telefon
  • TV
  • Gartenmöbel
Preis: ab 93,50 € *
pro Nacht

Per Klick kommen Sie zum nächsten Schritt, wo Sie Ihre Reisezeit mit genauer Preisangabe wählen können
Widlak 34/6
Betten 2
Größe 42 m²
Wohnzimmer 1
Schlafzimmer 1
Kochbereich Küche
Reisebabybett 38,50 €
Kofferservice zu Ihrem Appartement, pro Koffer 16,50 €
Nespressomaschine 27,50 €
Angebot für Union Reiseversicherung AG ohne Selbstbehalt 0,– €
  • Nichtraucher
  • Internetzugang
  • Parkplatz
  • Balkon
  • Allergenarm
  • Obergeschoß
  • Mikrowelle
  • TV
  • Gartenmöbel
  • Schlafsofa
  • Backofen
  • Kühlschrank
Preis: ab 71,50 € *
pro Nacht

Per Klick kommen Sie zum nächsten Schritt, wo Sie Ihre Reisezeit mit genauer Preisangabe wählen können
Riebschläger 34-7
Betten 2
Größe 45 m²
Wohnzimmer 1
Schlafzimmer 1
Kochbereich Küche
Reisebabybett 38,50 €
Bademantel 27,50 €
Kofferservice zu Ihrem... 16,50 €
Nespressomaschine 27,50 €
Angebot für Union... 0,– €
  • Nichtraucher
  • Internetzugang
  • Parkplatz
  • Balkon
  • Allergenarm
  • Obergeschoß
  • Waschmaschine
  • TV
  • Gartenmöbel
  • Doppelbett
  • Kühlschrank
  • Toaster
Preis: ab 71,50 € *
pro Nacht

Per Klick kommen Sie zum nächsten Schritt, wo Sie Ihre Reisezeit mit genauer Preisangabe wählen können
Weigel 36/5
Betten 4
Größe 39 m²
Wohn-/Schlafz. 1
Schlafzimmer 1
Kochbereich Küche
Bademantel 27,50 €
Kofferservice zu Ihrem Appartement, pro Koffer 16,50 €
Nespressomaschine 27,50 €
Angebot für Union Reiseversicherung AG ohne Selbstbehalt 0,– €
  • Nichtraucher
  • Internetzugang
  • Parkplatz
  • Balkon
  • Allergenarm
  • Parterre
  • Mikrowelle
  • TV
  • Gartenmöbel
  • Doppelbett
  • Schlafsofa
  • Kleiderschrank
Preis: ab 110,– € *
pro Nacht

Per Klick kommen Sie zum nächsten Schritt, wo Sie Ihre Reisezeit mit genauer Preisangabe wählen können
* Die Preise gelten in € inkl. MwSt. Die Unterkunftsdarstellung ist ein unverbindliches Angebot.
Ohne Vorgabe einer Aufenthaltszeit wird der Unterkunftspreis für die günstigste Übernachtung angezeigt.
Wenn sich mehrere Wohneinheiten eine Darstellung teilen, gelten die Fotos auszugsweise. Kinderbetten gelten für Kinder bis 36 Monate.